482 Dutch Pine DriveMonument, CO 80132




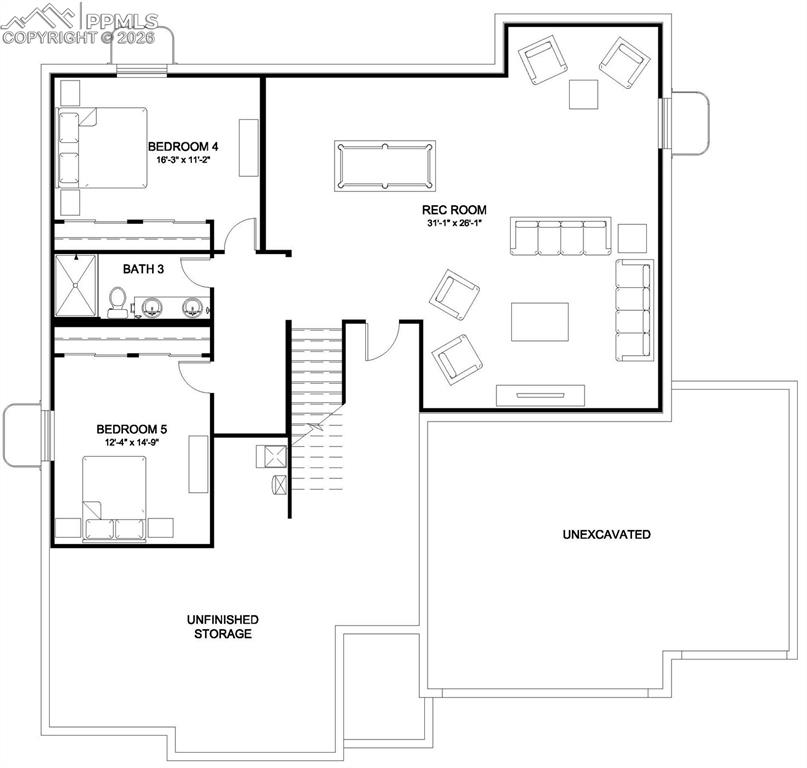
Welcome to The Tenley, our most popular floor plan, and the winner of "Best Architectural Exterior" at the 2025 Colorado Springs Parade of Homes. The open-concept main level connects the great room, dining area, and kitchen in a layout designed for both daily comfort and gracious entertaining. Oversized windows flood the space with natural light, while Samsung appliances and high-end Kohler fixtures elevate the everyday experience. A spacious pantry, powder room, and mudroom off the 3-car garage bring everyday functionality, while the primary suite provides a private retreat with a freestanding soaking tub, lighted mirrors, and a generous walk-in closet. Two additional bedrooms and a full bath complete the main floor. The finished basement expands the home's versatility with a generous rec room, wet bar, two additional bedrooms, a full bath, and dedicated storage — perfect for hosting, relaxing, or accommodating extended family and guests. Finished in the Telluride design package, the interior features creamy quartz countertops, natural wood-tone flooring, warm cabinetry, soft neutral carpet, and coordinating tile — a cohesive palette that feels both contemporary and distinctly Colorado. A/C is included for year-round comfort. A covered patio off the great room extends the living space outdoors, completing a home that balances refined finishes with the ease of ranch-style living.
| 2 days ago | Listing updated with changes from the MLS® | |
| 2 days ago | Listing first seen on site |
The real estate listing information and related content displayed on this site is provided exclusively for consumers’ personal, non-commercial use and may not be used for any purpose other than to identify prospective properties consumers may be interested in purchasing. This information and related content is deemed reliable but is not guaranteed accurate by the Pikes Peak REALTOR® Services Corp d/b/a elevateMLS. Copyright 2026
Last checked: 2026-04-30 06:56 AM UTC
